Bouwcampus 2.0

The compact building that is energetically smart, energy- and water-positive, and powered by the force of nature.

Bouwcampus 2.0

In Diepenbeek, Bouwcampus 2.0 is emerging as a space where circularity, future-oriented construction, and collective responsibility become tangible. Not abstract principles, but structural choices. Not optional, but radically reusable, open, and interconnected.

As a hub within Limburg DC, Bouwcampus 2.0 brings together different actors: education, government, and entrepreneurs. In these parallel worlds, the focus lies on meeting, innovation, and demonstration. The result is a place that inspires and simultaneously propels forward – conceptually, spatially, and socially.

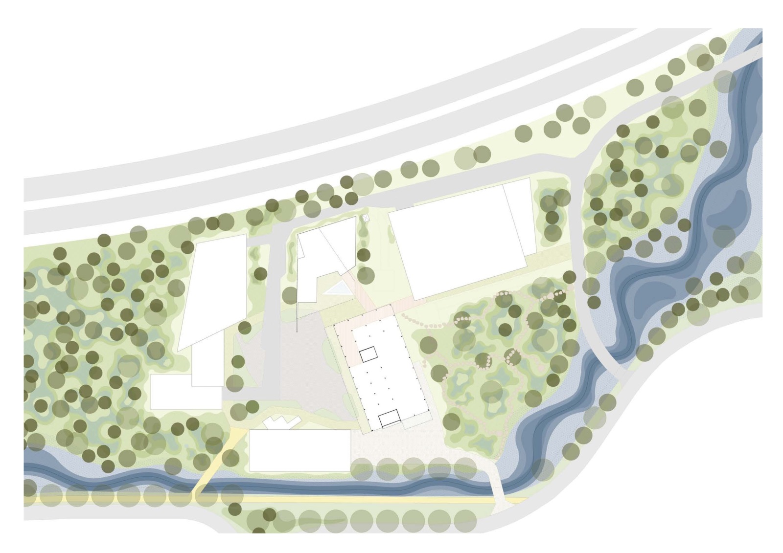
Embedded in Environment and Landscape

The building is carefully anchored in its surroundings. It is not added to the landscape, but emerges from it. Existing woodlands are extended, and ecological connections are restored. Within these connections, a deliberately water-positive approach is chosen. Rainwater is collected, reused, and infiltrated. Open water features make water visible and raise awareness.

Bouwcampus 2.0 adds a new layer to an existing campus. A strategically placed canopy guides visitors from the parking structure to the square and further into the site. Wayfinding happens naturally – without excessive signage.

A Building with Principles

Bouwcampus 2.0 is designed as a compact volume with a high-performance, modular envelope. The structure consists of a grid of timber columns, beams, and floors. The layout is logical, the plan clear. At the heart, a central staircase cuts through all floors, linking open areas with coffee corners and workspaces. Overlap and spontaneous encounters are embedded into the system.

Technology is made visible. PV panels in the canopy, a prominent solar shaft on the south façade, and climate ducts on the inside – what is hidden elsewhere is made visible here. Not as spectacle, but as an invitation to learn.

Material use follows the principle of circularity. Familiar, reused elements such as concrete blocks and recycled sheet materials are combined with bio-based newcomers: hempcrete, clay brick, and timber. The building serves as both a material bank and a carbon sink.

From Design to Realisation

Bouwcampus 2.0 is the first timber building to apply the Earth, Wind & Fire principle: passive cooling, bioclimatic design, natural ventilation, and renewable energy are integrated into one comprehensive climate system. Architectural and technical design are inseparably intertwined.

Using an adapted Trias Energetica, every choice aims for maximum effect with minimal impact. Performance is driven by calculation models rather than intuition. Decisions are assessed based on comfort, robustness, maintenance, and material impact.

This building demonstrates: there is another way.

15/07/2025: publication in Houtblad

Timeline

2023 - ...

State

Ongoing

Location

Diepenbeek

Type

Office

Size

5.500 m2

Architect

a2o, Broekbakema

Client

Provincie Limburg & POM Limburg

Partners

Dethier, Vanhout, Arcade, Halmos, DUSS

Share

Related projects